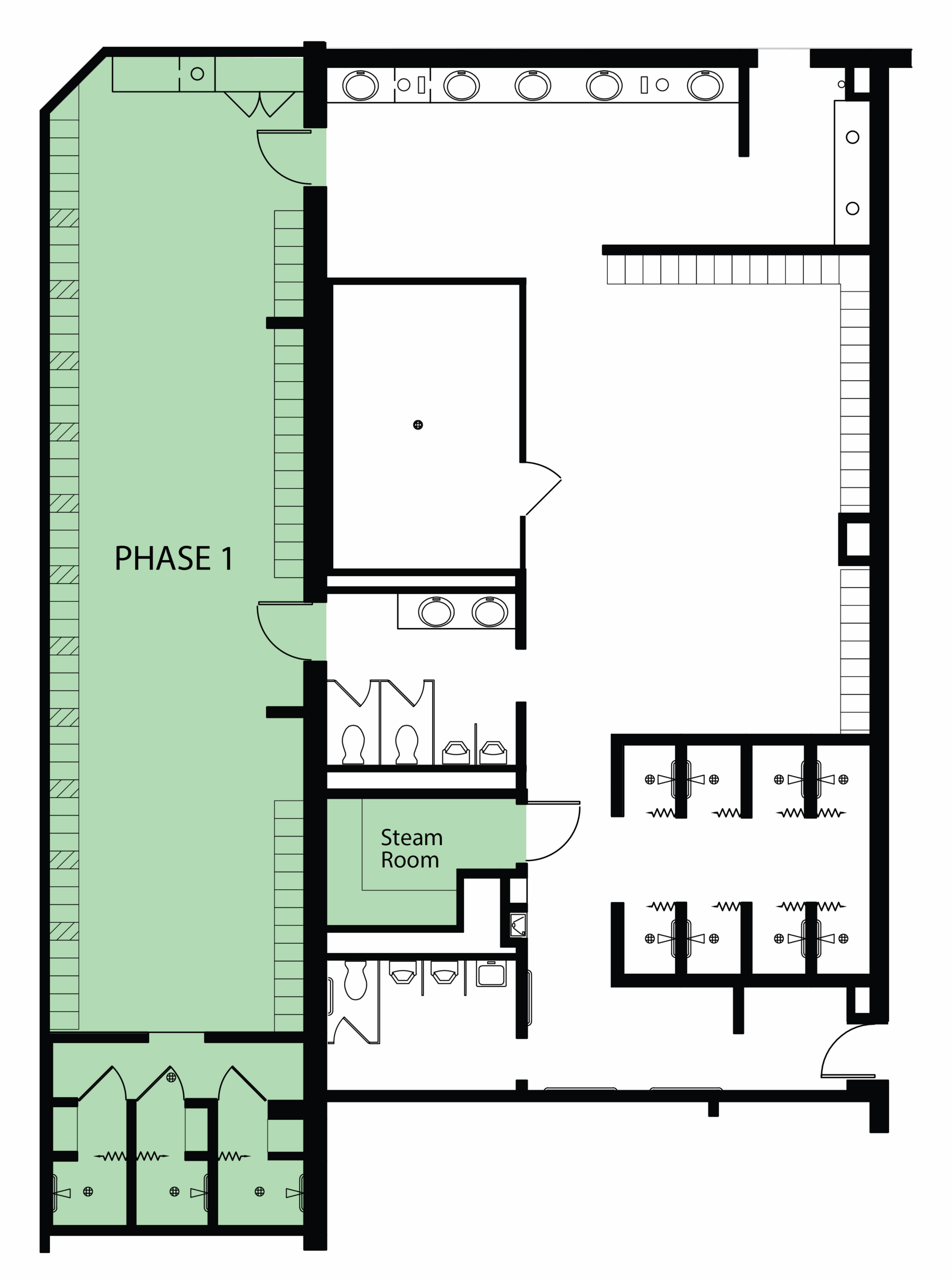
Men's Phase 1

We are very excited to announce that we are planning to remodel and refresh our lounge bathrooms, and the men’s and women’s locker rooms at the Wheaton Sport Center.
Lounge Bathrooms will be closed starting November 18th and will reopen December 12th.
Beginning December 1, we will begin a multi-phase locker room renovation designed to give you a more modern, comfortable, and functional space to enjoy every day.
During this phase, entry into the Men’s Locker room will be through the pool door, via the Family Changing Room.
If you have a permanent locker in the locker room,
you will receive a separate email with information regarding availability.
Showers and limited lockers will remain available throughout the entire renovation process.
We’ll share more details and timelines as the work approaches.
We can’t wait to unveil the new spaces and share the transformation with you.
Thank you for your patience and continued support.